Дома под ключ в Раменском
Отзывы из Яндекс Карт
4.9
93 отзывов
Дополнительные услуги 88%
2 154 оценок
Комплектации 89%
1 535 оценок
Планировки 90%
2 484 оценок
Проекты 93%
2 231 оценок
С
Алёна Сергеева15.05.2025 г.
Это была наша первая стройка, и мы очень переживали, но компания полностью оправдала доверие — дом возведен в срок, качество материалов отличное, а архитектор помогла адаптировать проект под наши нужды, получилось именно то, о чем мечтали.
Отзывы из Google Карт
4.8
56 отзывов
Дополнительные услуги 88%
2 154 оценок
Комплектации 89%
1 535 оценок
Планировки 90%
2 484 оценок
Проекты 93%
2 231 оценок
С
Сережа Ермолаев14.03.2025 г.
Огромное спасибо ребятам из "Брус дома" за их золотые руки и ответственный подход к делу. Строил баню по каркасной технологии и остался крайне доволен скоростью возведения и точным соблюдением всех технологических норм. Помещение получилось очень теплым и дышащим, с идеальной геометрией и аккуратными внутренними перегородками. Уже успел несколько раз попариться с друзьями — все в восторге от атмосферы и качества пара.
Отзывы из 2гис
4.9
33 отзывов
Дополнительные услуги 88%
2 154 оценок
Комплектации 89%
1 535 оценок
Планировки 90%
2 484 оценок
Проекты 93%
2 231 оценок
С
Адель Кукушкина30.07.2025 г.
Отдельная благодарность за чистоту и порядок на площадке во время всего строительства! После рабочих не осталось ни мусора, ни лишних материалов, все было аккуратно убрано и вывезено. Это говорит о высокой культуре производства и уважении к заказчику, что сейчас большая редкость.


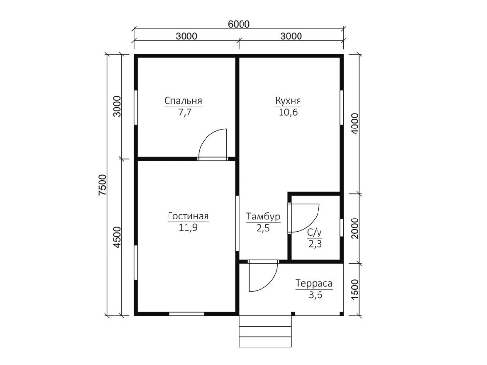
Проект №48 Дом 6х7,5

каркас из строганой доски
Каркасный дом (150 мм) 6х7,5 Толщина утепления 150 мм 1410100 Заказать
Каркасный дом (200 мм) 6х7,5 Толщина утепления 200 мм 1530100 Заказать

Для того, чтобы получить уникальную планировку, воспользуйтесь планировщиком.

С использованием планировщика можно создать максимально подходящие планы, эскизы, схемы, чертежи вашего будущего дома с эркером, мансардой, с несколькими спальнями. Вы сможете получить отличный проект, 100% отвечающий вашим требованиям.

Вы сможете выбрать подходящий тип крыши: четырехскатная, двускатная и вальмовая. Двухскатную крышу считают наиболее популярной у малометражных построек.

Самые востребованные размеры: мини - до 50 м2 (в большинстве случаев, одноэтажные); компактные - от 70м2 до 100 квадратов (обычно 2х этажные); большие дома - начиная от 150 кв. М и свыше.

Предлагаем дуплексы - большие современные каркасные постройки с двумя входами, рассчитанные на две семьи. Подобные дома строятся сразу для нескольких хозяев, они поделены на две части, каждая половина с отдельным входом.


Наши работы

Перейти в галерею


Комплектация

Площадь застройки: 38.6 м2
Длина: 6 м
Ширина: 7.5 м
Общая площадь: м2
Исполнение Под ключ (с отделкой)
Фундамент Свайно-винтовой или ж/б сваи (рассчитываются отдельно).
Гидроизоляция фундамента Рубероид в два слоя.
Основание (обвязка) Из обрезного бруса 150х150 мм. 150х200 мм. согласно выбранной толщине утепления. Торцевая доска строганая 45х145/45х195+/-5 мм. согласно выбранной толщине утепления. Обработка антисептиком.
Цокольное перекрытие Строганая доска камерной сушки 45х145/45х195+/-5 мм. с шагом 590 мм. Обработка антисептиком.
Пол черновой Обрезная доска камерной сушки 20х100 мм.
Влаго-ветрозащита чернового пола Мембрана Ондутис А100.
Внешние стены Стойки каркаса из строганой доски камерной сушки 45х145/45х195+/-5 мм. с шагом 590 мм. Верхняя двойная и нижняя обвязки из строганой доски камерной сушки 45х145/45х195+/-5 мм. Разгрузочный ригель из строганой доски 45х145+/-5 мм. Укосины из строганой доски 20х95 мм.
Перегородки Стойки каркаса из строганой доски камерной сушки 45х95+/-5 мм. с шагом 590 мм. Верхняя двойная и нижняя обвязки из строганой доски 45х95+/-5 мм. Разгрузочный ригель из строганой доски камерной сушки 45х145+/-5 мм. Укосины из строганой доски камерной сушки 20х95 мм.
Сборка каркаса На гвозди.
Высота от пола до потолка Дом одноэтажный: 2,5 м. Дом с мансардой: 1-ый этаж- 2,5 м.
2-ой этаж (мансарда)- 2,3 м.
Дом в полтора и два этажа:
1-ый этаж 2,5 м.
2-ой этаж 2,4 м. в полутораэтажном доме
2,5 м. в двухэтажном доме.
Внешняя отделка стен Имитация бруса камерной сушки, сорт АВ, толщиной 17 мм. Монтаж через строганый брусок камерной сушки 45х45+/-5 мм. (вентилируемый фасад). Влаго-ветрозащитная мембрана- Ондутис А100.
Внутренняя отделка стен, перегородок Евровагонка камерной сушки, сорт АВ, толщиной 12,5 мм. по строганой рейке 20х40+/-5 мм. либо ГКЛ 12,5 мм.
Отделка потолка Евровагонка камерной сушки, сорт АВ толщиной, 12,5 мм. по строганой рейке 20х40+/-5 мм. либо ГКЛ 12,5 мм.
Пол чистовой Шпунтованная доска камерной сушки толщиной 35-36 мм. сорт АВ. по строганой рейке 20х40+/-5 мм. либо шпунтованная ДСП 16 мм. по разряженной обрешётке из строганой доски камерной сушки 20х95+/-5 мм.
Утепление (пол, потолок) Минеральная вата Knauf 150/200 мм. согласно выбранной толщине утепления.
Утепление стен Плитный утеплитель Rockwool, толщиной 150/200 мм. согласно выбранной толщине утепления.
Звукоизоляция перегородок Плитный утеплитель Rockwool, толщиной 100 мм.
Пароизоляция (стены, перегородки, пол, потолок) Плёнка Ондутис R70. Дополнительная герметизация нахлёстов/примыканий пароизоляционной плёнки клейкой лентой Delta.
Окна Двухкамерные стеклопакеты ПВХ белого цвета, профиль 60 мм. В комплекте: отливы, подоконники, москитные сетки.
Двери Входная- металлическая, утеплённая (Россия). Межкомнатные- филёнчатые.
Наличники на окна и двери Наличник деревянный, строганый, камерной сушки 70-90 мм. с двух сторон.
Лестница (при наличии второго этажа) Деревянная, одно или двухмаршевая. Перила- заводские резные, балясины- заводские точеные, устанавливаются стартовые точёные столбы. Ступени 40х200 мм. Тетива лестницы- 90х140 мм.
Крыша Двускатная, ломаная или вальмовая в соответствии с проектом.
Стропильная система Выполнена из строганой доски камерной сушки 45х145/45х195+/-5 мм. Шаг установки стропил 590 мм.
Обрешётка Выполняется из строганой доски камерной сушки толщиной 20х95+/-5 мм. Шаг крепления обрешетки 350 мм. Контробрешётка выполняется из строганого бруска камерной сушки 45х45+/-5 мм. Крепится по стропилам (вентиляционный зазор).
Подкровельная мембрана Ондутис А100
Кровельное покрытие (на выбор) Металлочерепица 0,45 мм. Цвет на выбор.
Фронтоны (при наличии) Каркас из строганой доски камерной сушки 45х145/45х195+/-5 мм. Обшиваются имитацией бруса камерной сушки, сорт АВ, толщиной 17 мм. Монтаж через строганый брусок камерной сушки 45х45+/-5 мм. (вентилируемый фасад). Влаго-ветрозащитная мембрана- Ондутис А100. Монтаж вентиляционных решёток.
Свесы крыши Ширина 400 мм. Подшиваются вагонкой камерной сушки, сорт АВ.
Терраса/балкон (при наличии) Устанавливаются опорные столбы из строганного бруса камерной сушки 140х140 мм.
Отделка потолка террасы/балкона Евровагонка камерной сушки толщиной 12,5 мм. сорт АВ.
Пол террасы/балкона Шпунтованная доска камерной сушки толщиной 35-36 мм. сорт АВ.
Ограждение террасы/балкона Перила- строганая доска. Балясины- точеные, фигурные. Либо ограждение в скандинавском стиле. Устанавливаются ступени у входа.
Допуск на геометрические параметры Составляет +/- 50 мм по длине с каждой стороны.
Допускается стыковка имитации бруса, вагонки и половой доски По всему периметру стен дома (если ширина и длина дома более 6,0 метров). Вагонки и доски пола в каждой отдельной комнате.
Допуски по имитации бруса, вагонке, доске +/- 5 мм.
В стоимость включена Доставка комплекта материала в радиусе 500 км. от г. Пестова Новгородской области и сборка дома на вашем участке.
Гарантия 5 лет.
Бытовка строительная 2,0х3,0 м. каркасно-щитовая. Стоимость 23000 руб. Остаётся на участке Заказчика.
Туалет 1,0х1,0 м. каркасно-щитовой. Стоимость 12000 руб. Остаётся на участке Заказчика.
Генератор Стоимость аренды на весь срок строительства 15000 руб. ГСМ за счёт Заказчика.

Постройка дома производится в 2-х вариантах: под усадку, когда дом отстаивается некоторое время и под ключ.

Зимой специалисты советуют строить дом в морозную погоду, чтобы каркас не отсырел, летом - не в дождливую.

Наиболее подходящими для дачи или сада являются дома на винтовых сваях, у нас представлены одноэтажные и полуторатажные варианты.

Для ПМЖ (постоянного проживания), предлагаем очень теплые и надежные одноэтажные и двухэтажные дома на ленточном и плитном фундаменте.

Мы можем предложить 2 размера утепления: 150 мм и 200 мм. Каркасные дома с утеплителем двести миллиметров получаются теплее, но несколько дороже.

Дополнительные услуги


Дом с каркасной структурой , по плану 48 одноэтажный с теплой двускатной конструкцией крыши, выделяется экологической безопасностью, в связи с применением стружчатых плит, теплоизоляционной ваты, что создает замечательную термоизоляцию, комфортный микроклимат в помещении. Нормы дома составляют 6х7,5 м., общая пригодная для жизни площадь - кв.м.. Наша компания в кратчайшие сроки возведет каркасник по персональному или типовому проекту в Раменском в удобное для вас время года и на выбранном вами варианте грунта.

Популярные проекты


Каркасные дома 8х8 Каркасные дома 8х9 Бани из бруса 6х4
хит продаж
Тип: с балконом
Общая площадь: 2
3517600
от 3350100
хит продаж
Тип:
Общая площадь: 2
2425600
от 2310100
хит продаж
Тип:
Общая площадь: 2
2604100
от 2480100
Дома из бруса

Заказать или задать вопрос



Заказать или задать вопрос

Заказать звонок